Joy Apartment

An extraordinarily spacious home in the heart of downtown seamlessly combines three floors of a prominent residential tower.

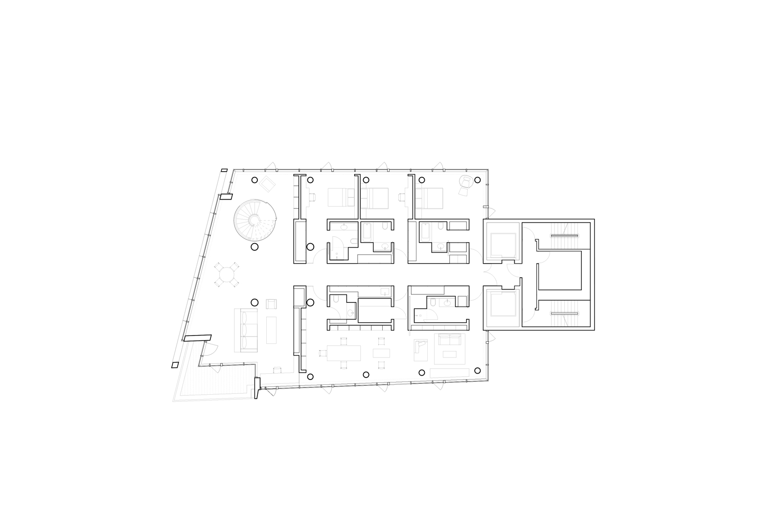
The apartment comprises three prime floors in south tower of 176 Perry Street, a condo building designed by Meier Partners. The design creates a spatial unity between all three levels by celebrating natural light and emphasizing stunning views across the Hudson River. Generous living spaces, including double a height-living volume, are the crux of the home, while full-height glass partitions are strategically positioned throughout the apartment to subdivide the space without interrupting the continuous flow for natural light.

The home’s main living spaces are broken down into a series of activity areas that continuously flow into each other around the central core. The circulation moves clockwise from the living room balcony to the spiral stair, the breakfast area, the kitchen, an audio-visual entertainment zone and, finally, back to the living room. Additional programs integrated into this fluid composition include a library, a guest suite, a gym, and a sauna.  Each floor has a substantial service core in the center of the plan which incorporates bath and dressing rooms, while each room includes a custom-designed touch-screen interface to manage lighting, music, and environment.

While each floor can be accessed directly from the building elevators, all three levels are also linked by an internal spiral stair. The graceful curves of its geometry, in combination with sleek glass railings and warm wood steps, establish a strong unifying element within the home’s overall architectural composition.